Naše služby

KATALÓG RODINNÝCH DOMOV

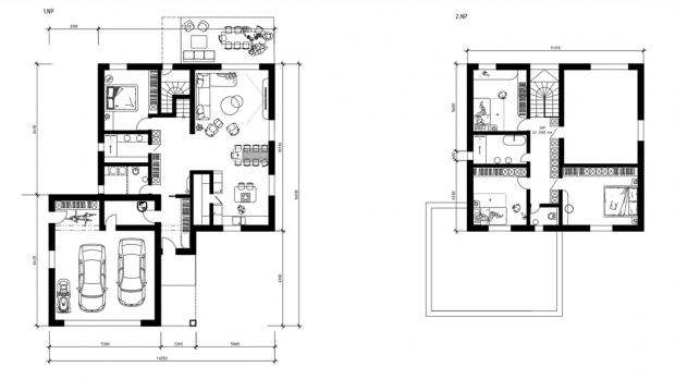
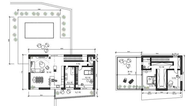
Vila Podhorie 1

    Typ stavby Prízemný
    Počet izieb 5
    Zastavaná plocha 481
    Úžitková plocha 201

Moderná vila je navrhnutá s dôrazom na pohodlné bývanie, praktické riešenia a nízku energetickú náročnosť. Premyslené dispozičné riešenie a priestranné interiéry vytvárajú ideálne prostredie pre rodiny, ktoré ocenia kombináciu komfortu, relaxu a nadčasovej elegancie.

Priestranná denná zóna kuchyne, jedálne a obývacej izby je doplnená o komfortnú SPA zónu, exteriérovú kuchyňu so skladom a veľkorysím parkovaním v garáži. Nočnú časť tvoria štyri spálne s oddelenými kúpeľňami pre užívateľský komfort.

Vila je nízkoenergetická, s možnosťou úpravy na pasívny štandard podľa požiadaviek zákazníka.

Cena domu na kľúč zahŕňa:

✅ Projekt pre stavebné povolenie
✅ Základy do výšky 50 cm
✅ Konštrukčný systém
✅ Strešná krytina 
✅ Kvalitné plastové okná s izolačným trojsklom a vchodové dvere
✅ Kompletná elektroinštalácia
✅ Kompletné rozvody vody a kanalizácie
✅ Fasádny zatepľovací systém (15 cm)
✅ Silikónová omietka
✅ Sadrokartónové konštrukcie
✅ Biele maľby
✅ Tepelná izolácia podlahy
✅ Moderné podlahové vykurovanie
✅ Interiérové dvere
✅ Montáž plávajúcej podlahy, keramickej dlažby a obkladov
✅ Montáž zariaďovacích predmetov (WC, umývadlá, sprcha, vaňa...)

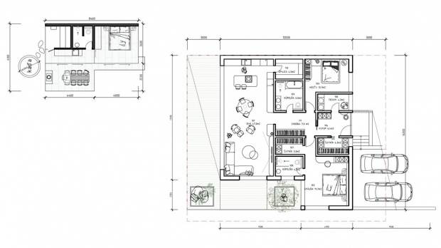
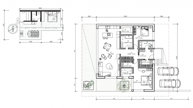
Rezidencia Atrium

    Typ stavby Prízemný
    Počet izieb 4
    Zastavaná plocha 226,7 m2
    Úžitková plocha 138,7 m2

Tento moderný rodinný dom ponúka harmonické spojenie komfortného bývania, funkčnej dispozície a kvalitného oddychu v súkromí vlastného pozemku. Premyslený návrh kladie dôraz na logické rozdelenie denných a nočných častí domu, dostatok úložných priestorov a plynulé prepojenie interiéru s exteriérom.

Dominantou domu je priestranná denná zóna, pozostávajúca z veľkorysej obývacej izby prepojenej s kuchyňou a jedálenskou časťou. Otvorený koncept vytvára vzdušný priestor ideálny pre spoločné rodinné chvíle aj stretnutia s priateľmi. Veľkoformátové presklenia zabezpečujú dostatok prirodzeného svetla a prirodzene prepájajú interiér so záhradou, čím umocňujú pocit otvorenosti a kontaktu s prírodou.

Nočná časť domu je navrhnutá s dôrazom na súkromie a pokoj. Nachádza sa tu hlavná spálňa, doplnená o samostatný šatník, ako aj hosťovská izba, ktorá môže slúžiť aj ako detská izba či pracovňa. Komfort bývania zvyšujú dve samostatné kúpeľne, čo zabezpečuje pohodlie pre všetkých členov domácnosti. Praktické riešenie dopĺňa technická miestnosť, sklad a dostatok úložných priestorov v podobe vstavaných šatníkov.

Významnou pridanou hodnotou projektu je samostatný záhradný domček so spa zónou, ktorý vytvára ideálne miesto na relax a regeneráciu počas celého roka. Wellness priestor s kaďou ponúka dokonalý únik od každodenného zhonu a zároveň rozširuje obytný komfort domu o exkluzívnu oddychovú zónu v súkromí záhrady. 

Dom je nízkoenergetický, s možnosťou úpravy na pasívny štandard podľa požiadaviek zákazníka.

Cena domu na kľúč zahŕňa:

✅ Projekt pre stavebné povolenie
✅ Základy do výšky 50 cm
✅ Konštrukčný systém
✅ Strešná krytina 
✅ Kvalitné plastové okná s izolačným trojsklom a vchodové dvere
✅ Kompletná elektroinštalácia
✅ Kompletné rozvody vody a kanalizácie
✅ Fasádny zatepľovací systém (15 cm)
✅ Silikónová omietka
✅ Sadrokartónové konštrukcie
✅ Biele maľby
✅ Tepelná izolácia podlahy
✅ Moderné podlahové vykurovanie
✅ Interiérové dvere
✅ Montáž plávajúcej podlahy, keramickej dlažby a obkladov
✅ Montáž zariaďovacích predmetov (WC, umývadlá, sprcha, vaňa...)

Vila Spišská 2

    Typ stavby Prízemný
    Počet izieb 3
    Počet osôb 4-6
    Zastavaná plocha 146,75 m2
    Úžitková plocha 114,23 m2

Tento moderný rodinný dom ponúka komfortné a praktické bývanie s dôrazom na funkčnosť, energetickú úspornosť a relax. Vďaka premyslenej dispozícii a veľkorysým priestorom je ideálnou voľbou pre rodiny, ktoré hľadajú spojenie pohodlia a elegancie.

Denná zóna, tvorí srdce domu. Pozostáva z priestrannej obývacej izby prepojenej s kuchyňou a jedálenskou časťou. Poskytuje tak dostatok priestoru pre rodinné stretnutia aj relax. V dennej časti sa nachádza tiež praktická špajza, technická miestnosť a kúpeľňa, ktoré zvyšujú komfort každodenného fungovania. Súčasťou domu je aj garáž, z ktorej je zabezpečený prechod aj priamo do domu.

Nočná zóna zahŕňa tri samostatné izby, a to sú hlavná spálňa a dve izby.

Dom je nízkoenergetický, s možnosťou úpravy na pasívny štandard podľa požiadaviek zákazníka.

Cena domu na kľúč zahŕňa:

✅ Projekt pre stavebné povolenie
✅ Základy do výšky 50 cm
✅ Konštrukčný systém
✅ Strešná krytina 
✅ Kvalitné plastové okná s izolačným trojsklom a vchodové dvere
✅ Kompletná elektroinštalácia
✅ Kompletné rozvody vody a kanalizácie
✅ Fasádny zatepľovací systém (15 cm)
✅ Silikónová omietka
✅ Sadrokartónové konštrukcie
✅ Biele maľby
✅ Tepelná izolácia podlahy
✅ Moderné podlahové vykurovanie
✅ Interiérové dvere
✅ Montáž plávajúcej podlahy, keramickej dlažby a obkladov
✅ Montáž zariaďovacích predmetov (WC, umývadlá, sprcha, vaňa...)

RD Línia

    Typ stavby Dvojpodlažný
    Počet izieb 6
    Počet osôb 6
    Zastavaná plocha 176,76 m2
    Úžitková plocha 247,6 m2

Tento moderný dvojpodlažný rodinný dom je vďaka premyslenej dispozícii ideálnou voľbou pre rodiny, ktoré hľadajú spojenie pohodlia a elegancie.

Denná zónaje tvorená obývacou izbou prepojenou s kuchynskou a jedálenskou časťou. Poskytuje tak dostatok priestoru pre rodinné stretnutia aj relax. Na prízemí sa nachádza jedna izba, kúpeľňa, oddelené WC, technická miestnosť a garáž.

Nočná zóna zahŕňa štyri izby na druhom podlaží a samostatná kúpeľňa s oddeleným WC.

Dom je nízkoenergetický, s možnosťou úpravy na pasívny štandard podľa požiadaviek zákazníka.

Cena domu na kľúč zahŕňa:

✅ Projekt pre stavebné povolenie
✅ Základy do výšky 50 cm
✅ Konštrukčný systém
✅ Strešná krytina 
✅ Kvalitné plastové okná s izolačným trojsklom a vchodové dvere
✅ Kompletná elektroinštalácia
✅ Kompletné rozvody vody a kanalizácie
✅ Fasádny zatepľovací systém (15 cm)
✅ Silikónová omietka
✅ Sadrokartónové konštrukcie
✅ Biele maľby
✅ Tepelná izolácia podlahy
✅ Moderné podlahové vykurovanie
✅ Interiérové dvere
✅ Montáž plávajúcej podlahy, keramickej dlažby a obkladov
✅ Montáž zariaďovacích predmetov (WC, umývadlá, sprcha, vaňa...)

Rezidencia Dark

    Typ stavby Prízemný
    Počet izieb 3
    Počet osôb 3
    Zastavaná plocha 226,7 m2
    Úžitková plocha 138,7 m2

Tento moderný rodinný dom ponúka harmonické spojenie komfortného bývania, funkčnej dispozície a kvalitného oddychu v súkromí vlastného pozemku. Premyslený návrh kladie dôraz na logické rozdelenie denných a nočných častí domu, dostatok úložných priestorov a plynulé prepojenie interiéru s exteriérom.

Dominantou domu je priestranná denná zóna, pozostávajúca z veľkorysej obývacej izby prepojenej s kuchyňou a jedálenskou časťou. Otvorený koncept vytvára vzdušný priestor ideálny pre spoločné rodinné chvíle aj stretnutia s priateľmi. Veľkoformátové presklenia zabezpečujú dostatok prirodzeného svetla a prirodzene prepájajú interiér so záhradou, čím umocňujú pocit otvorenosti a kontaktu s prírodou.

Nočná časť domu je navrhnutá s dôrazom na súkromie a pokoj. Nachádza sa tu hlavná spálňa, doplnená o samostatný šatník, ako aj hosťovská izba, ktorá môže slúžiť aj ako detská izba či pracovňa. Komfort bývania zvyšujú dve samostatné kúpeľne, čo zabezpečuje pohodlie pre všetkých členov domácnosti. Praktické riešenie dopĺňa technická miestnosť, sklad a dostatok úložných priestorov v podobe vstavaných šatníkov.

Významnou pridanou hodnotou projektu je samostatný záhradný domček so spa zónou, ktorý vytvára ideálne miesto na relax a regeneráciu počas celého roka. Wellness priestor s kaďou ponúka dokonalý únik od každodenného zhonu a zároveň rozširuje obytný komfort domu o exkluzívnu oddychovú zónu v súkromí záhrady. 

Dom je nízkoenergetický, s možnosťou úpravy na pasívny štandard podľa požiadaviek zákazníka.

Cena domu na kľúč zahŕňa:

✅ Projekt pre stavebné povolenie
✅ Základy do výšky 50 cm
✅ Konštrukčný systém
✅ Strešná krytina 
✅ Kvalitné plastové okná s izolačným trojsklom a vchodové dvere
✅ Kompletná elektroinštalácia
✅ Kompletné rozvody vody a kanalizácie
✅ Fasádny zatepľovací systém (15 cm)
✅ Silikónová omietka
✅ Sadrokartónové konštrukcie
✅ Biele maľby
✅ Tepelná izolácia podlahy
✅ Moderné podlahové vykurovanie
✅ Interiérové dvere
✅ Montáž plávajúcej podlahy, keramickej dlažby a obkladov
✅ Montáž zariaďovacích predmetov (WC, umývadlá, sprcha, vaňa...)

Vlčia jama 1

    Typ stavby Dvojpodlažný
    Počet izieb 5
    Počet osôb 6
    Zastavaná plocha 181 m2
    Úžitková plocha 203,2 m2

Tento moderný dvojpodlažný rodinný dom ponúka komfortné a praktické bývanie s dôrazom na funkčnosť, energetickú úspornosť a relax. Vďaka premyslenej dispozícii a veľkorysým priestorom je ideálnou voľbou pre rodiny, ktoré hľadajú spojenie pohodlia a elegancie.

Denná zónaje tvorená obývacou izbou prepojenou s kuchynskou a jedálenskou časťou. Poskytuje tak dostatok priestoru pre rodinné stretnutia aj relax. Na prízemí sa nachádza jedna izba, kúpeľňa, technická miestnosť a garáž.

Nočná zóna zahŕňa tri samostatné izby na druhom podlaží a samostatná kúpeľňa s oddeleným WC.

Dom je nízkoenergetický, s možnosťou úpravy na pasívny štandard podľa požiadaviek zákazníka.

Cena domu na kľúč zahŕňa:

✅ Projekt pre stavebné povolenie
✅ Základy do výšky 50 cm
✅ Konštrukčný systém
✅ Strešná krytina 
✅ Kvalitné plastové okná s izolačným trojsklom a vchodové dvere
✅ Kompletná elektroinštalácia
✅ Kompletné rozvody vody a kanalizácie
✅ Fasádny zatepľovací systém (15 cm)
✅ Silikónová omietka
✅ Sadrokartónové konštrukcie
✅ Biele maľby
✅ Tepelná izolácia podlahy
✅ Moderné podlahové vykurovanie
✅ Interiérové dvere
✅ Montáž plávajúcej podlahy, keramickej dlažby a obkladov
✅ Montáž zariaďovacích predmetov (WC, umývadlá, sprcha, vaňa...)

Aurea - Glampingová Chata

    Typ stavby Prízemný

Glampingová chata Aurea je navrhnutá ako moderný úkryt v prírode, ktorý spája minimalistickú architektúru, funkčné riešenie priestoru a vysoký komfort bývania. Na kompaktnej ploche ponúka všetko, čo hostia potrebujú na oddych – súkromie, útulnosť aj plnohodnotné vybavenie.

Interiér je premyslene rozdelený na dennú a nočnú časť. Dominantou chaty je pohodlná spálňa s manželskou posteľou orientovaná do stredu dispozície, ktorá vytvára pocit bezpečia a intimity. Kuchynský kút s dostatkom úložného priestoru plynule nadväzuje na jedálenskú a oddychovú zónu, ideálnu na spoločné chvíle či relax po dni strávenom v prírode.

Plnohodnotná kúpeľňa so sprchou a toaletou poskytuje hotelový štandard aj v glampingovom prostredí. Veľké presklenia prepájajú interiér s exteriérom, prinášajú dostatok denného svetla a umožňujú priamy kontakt s okolím. Pred chatou sa nachádza terasa, ktorá rozširuje obytný priestor a vytvára ideálne miesto na rannú kávu, večerné posedenie alebo pozorovanie prírody.

Aurea je ideálnou voľbou pre glampingové rezorty, rekreačné areály aj súkromných investorov, ktorí hľadajú nadčasový dizajn, efektívnu prevádzku a zážitkové bývanie v súlade s prírodou.

Chata je nízkoenergetická, s možnosťou úpravy na pasívny štandard podľa požiadaviek zákazníka.

Cena domu na kľúč zahŕňa:

✅ Projekt pre stavebné povolenie
✅ Základy do výšky 50 cm
✅ Konštrukčný systém
✅ Strešná krytina 
✅ Kvalitné plastové okná s izolačným trojsklom a vchodové dvere
✅ Kompletná elektroinštalácia
✅ Kompletné rozvody vody a kanalizácie
✅ Fasádny zatepľovací systém (15 cm)
✅ Silikónová omietka
✅ Sadrokartónové konštrukcie
✅ Biele maľby
✅ Tepelná izolácia podlahy
✅ Moderné podlahové vykurovanie
✅ Interiérové dvere
✅ Montáž plávajúcej podlahy, keramickej dlažby a obkladov
✅ Montáž zariaďovacích predmetov (WC, umývadlá, sprcha, vaňa...)

Rezidencia Wood

    Typ stavby Prízemný
    Počet izieb 4
    Počet osôb 3
    Zastavaná plocha 226,7 m2
    Úžitková plocha 138,7 m2

Tento moderný rodinný dom ponúka harmonické spojenie komfortného bývania, funkčnej dispozície a kvalitného oddychu v súkromí vlastného pozemku. Premyslený návrh kladie dôraz na logické rozdelenie denných a nočných častí domu, dostatok úložných priestorov a plynulé prepojenie interiéru s exteriérom.

Dominantou domu je priestranná denná zóna, pozostávajúca z veľkorysej obývacej izby prepojenej s kuchyňou a jedálenskou časťou. Otvorený koncept vytvára vzdušný priestor ideálny pre spoločné rodinné chvíle aj stretnutia s priateľmi. Veľkoformátové presklenia zabezpečujú dostatok prirodzeného svetla a prirodzene prepájajú interiér so záhradou, čím umocňujú pocit otvorenosti a kontaktu s prírodou.

Nočná časť domu je navrhnutá s dôrazom na súkromie a pokoj. Nachádza sa tu hlavná spálňa, doplnená o samostatný šatník, ako aj hosťovská izba, ktorá môže slúžiť aj ako detská izba či pracovňa. Komfort bývania zvyšujú dve samostatné kúpeľne, čo zabezpečuje pohodlie pre všetkých členov domácnosti. Praktické riešenie dopĺňa technická miestnosť, sklad a dostatok úložných priestorov v podobe vstavaných šatníkov.

Významnou pridanou hodnotou projektu je samostatný záhradný domček so spa zónou, ktorý vytvára ideálne miesto na relax a regeneráciu počas celého roka. Wellness priestor s kaďou ponúka dokonalý únik od každodenného zhonu a zároveň rozširuje obytný komfort domu o exkluzívnu oddychovú zónu v súkromí záhrady. 

Dom je nízkoenergetický, s možnosťou úpravy na pasívny štandard podľa požiadaviek zákazníka.

Cena domu na kľúč zahŕňa:

✅ Projekt pre stavebné povolenie
✅ Základy do výšky 50 cm
✅ Konštrukčný systém
✅ Strešná krytina 
✅ Kvalitné plastové okná s izolačným trojsklom a vchodové dvere
✅ Kompletná elektroinštalácia
✅ Kompletné rozvody vody a kanalizácie
✅ Fasádny zatepľovací systém (15 cm)
✅ Silikónová omietka
✅ Sadrokartónové konštrukcie
✅ Biele maľby
✅ Tepelná izolácia podlahy
✅ Moderné podlahové vykurovanie
✅ Interiérové dvere
✅ Montáž plávajúcej podlahy, keramickej dlažby a obkladov
✅ Montáž zariaďovacích predmetov (WC, umývadlá, sprcha, vaňa...)

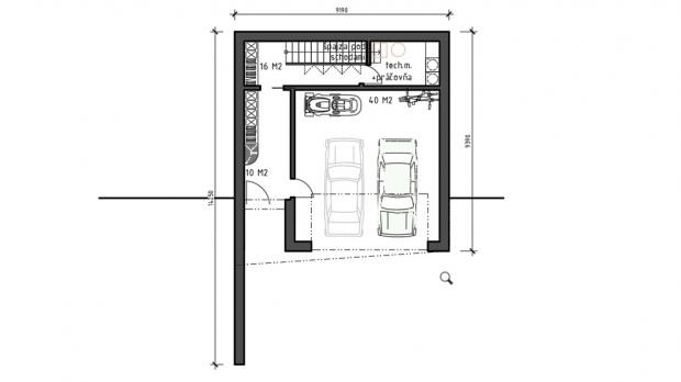
BUNGALOV TULSKÁ

    Typ stavby Prízemný
    Počet izieb 5
    Počet osôb 6
    Zastavaná plocha 152,7 m2
    Úžitková plocha 126,9 m2

Dom je dispozične rozdelený na dennú a nočnú zónu. Dennú zónu tvorí obývacia izba prepojená s kuchynskou a jedálenskou časťou. Súčasťou tejto časti je aj zádverie, technická miestnosť a dve kúpeľne.

Nočná zóna pozostáva z hlavnej spálne a troch ďalších izieb, ktoré môžu slúžiť ako detské izby alebo ako  pracovňa. Pre maximálny komfort obyvateľov sú k dispozícii dve kúpeľne – jedna s vaňou, a druhá so sprchovým kútom.

Tento dom je ideálnou voľbou pre tých, ktorí hľadajú moderné, priestranné a efektívne bývanie s vysokým dôrazom na komfort a úsporu energií.

Dom je nízkoenergetický, s možnosťou úpravy na pasívny štandard podľa požiadaviek zákazníka.

Cena domu na kľúč zahŕňa:

✅ Projekt pre stavebné povolenie
✅ Základy do výšky 50 cm
✅ Konštrukčný systém
✅ Strešná krytina
✅ Kvalitné plastové okná s izolačným trojsklom a vchodové dvere
✅ Kompletná elektroinštalácia
✅ Kompletné rozvody vody a kanalizácie
✅ Fasádny zatepľovací systém (15 cm)
✅ Silikónová omietka
✅ Sadrokartónové konštrukcie
✅ Biele maľby
✅ Tepelná izolácia podlahy
✅ Moderné podlahové vykurovanie
✅ Interiérové dvere
✅ Montáž plávajúcej podlahy, keramickej dlažby a obkladov
✅ Montáž zariaďovacích predmetov (WC, umývadlá, sprcha, vaňa...)

Chata Panorama

    Typ stavby Dvojpodlažný
    Počet izieb 2
    Počet osôb 2-3
    Úžitková plocha 50 m2

Táto moderná chata ponúka moderný dizajn a ideálne riešenie. 

Denná časť chaty na prízemí je navrhnutá tak, aby vytvorila príjemnú a otvorenú atmosféru s dostatkom prirodzeného svetla. Obývacia izba s kuchyňou a jedálňou je srdcom dennej časti chaty.

Nočná zóna na poschodí ponúka súkromie a komfort pre všetkých členov domácnosti s výhľadom.

Táto chata je ideálnou voľbou pre ľudí, ktorí hľadajú harmonické spojenie moderného bývania a prírodného prostredia.

Dom je nízkoenergetický, no na žiadosť zákazníka ho vieme upraviť na pasívny.

Cena domu na kľúč zahŕňa:

✅ Projekt pre stavebné povolenie
✅ Základy do výšky 50 cm
✅ Konštrukčný systém
✅ Strešná krytina 
✅ Kvalitné plastové okná s izolačným trojsklom a vchodové dvere
✅ Kompletná elektroinštalácia
✅ Kompletné rozvody vody a kanalizácie
✅ Fasádny zatepľovací systém (15 cm)
✅ Silikónová omietka
✅ Sadrokartónové konštrukcie
✅ Biele maľby
✅ Tepelná izolácia podlahy
✅ Moderné podlahové vykurovanie
✅ Interiérové dvere
✅ Montáž plávajúcej podlahy, keramickej dlažby a obkladov
✅ Montáž zariaďovacích predmetov (WC, umývadlá, sprcha, vaňa...)

RD Cube 3

    Typ stavby Dvojpodlažný
    Počet izieb 4
    Počet osôb 4-6
    Zastavaná plocha 131,5 m2
    Úžitková plocha 210,8 m2

Tento moderný rodinný dom poskytuje pohodlné a efektívne bývanie obzvlášť pri svahovitom teréne pozemku. 

Primárnou časťou prízemia je denná zóna, ktorá zahŕňa veľkorysú obývaciu izbu prepojenú s kuchyňou a jedálenskou časťou. Tento otvorený priestor ponúka dostatok miesta na spoločné chvíle a oddych. Atmosféru domova dopĺňa záhrada s bazénom, ktorá poskytuje príjemné miesto na relax. Komfort bývania zvyšuje aj garáž a praktická technická miestnosť v suteréne.

Nočná zóna zahŕňa tri samostatné izby – hlavnú spálňu a dve priestranné izby, ktoré môžu slúžiť ako detské alebo hosťovské. Rodinný dom disponuje dvoma kúpeľňami a taktiež praktickými šatníkmi.

Dom je nízkoenergetický, s možnosťou úpravy na pasívny štandard podľa požiadaviek zákazníka. Moderné technológie, vysoká tepelná izolácia a efektívne vykurovanie prispievajú k minimálnej spotrebe energie a maximálnemu komfortu bývania.

 Cena domu na kľúč zahŕňa:

✅ Projekt pre stavebné povolenie
✅ Základy do výšky 50 cm
✅ Konštrukčný systém
✅ Strešná krytina 
✅ Kvalitné plastové okná s izolačným trojsklom a vchodové dvere
✅ Kompletná elektroinštalácia
✅ Kompletné rozvody vody a kanalizácie
✅ Fasádny zatepľovací systém (15 cm)
✅ Silikónová omietka
✅ Sadrokartónové konštrukcie
✅ Biele maľby
✅ Tepelná izolácia podlahy
✅ Moderné podlahové vykurovanie
✅ Interiérové dvere
✅ Montáž plávajúcej podlahy, keramickej dlažby a obkladov
✅ Montáž zariaďovacích predmetov (WC, umývadlá, sprcha, vaňa...)

Vila Pršany

    Typ stavby Dvojpodlažný
    Počet izieb 4
    Počet osôb 4-6
    Zastavaná plocha 216,14 m2
    Úžitková plocha 314,35 m2

Tento moderný rodinný dom poskytuje pohodlné a efektívne bývanie so zameraním na funkčnosť, energetickú efektívnosť a oddych. Vďaka starostlivo navrhnutej dispozícii a priestranným interiérom ponúka ideálne prostredie pre rodiny, ktoré ocenia spojenie praktickosti, estetického prevedenia a maximálneho komfortu.

Primárnou časťou prízemia je denná zóna, ktorá zahŕňa veľkorysú obývaciu izbu s galériou plynule prepojenú s kuchyňou a jedálenskou časťou. Tento otvorený priestor ponúka dostatok miesta na spoločné chvíle a oddych. Veľkoformátové okná zabezpečujú dostatok prirodzeného svetla a vizuálne prepájajú interiér s exteriérom. Atmosféru domova dopĺňa zimná záhrada, ktorá poskytuje príjemné miesto na relax v každom ročnom období. Komfort bývania zvyšuje aj praktická technická miestnosť, špajza a kúpeľňa, ktoré zlepšujú každodennú funkčnosť domácnosti.

Nočná zóna zahŕňa tri samostatné izby – hlavnú spálňu a dve priestranné izby, ktoré môžu slúžiť ako detské alebo hosťovské. Táto časť domu disponuje aj dvoma kúpeľňami a šatníkom, čím sa zabezpečuje vysoký komfort pre všetkých obyvateľov. Nechýba ani pracovňa, ktorá poskytuje ideálne podmienky na home office alebo kreatívnu činnosť.

Dom je nízkoenergetický, s možnosťou úpravy na pasívny štandard podľa požiadaviek zákazníka. Moderné technológie, vysoká tepelná izolácia a efektívne vykurovanie prispievajú k minimálnej spotrebe energie a maximálnemu komfortu bývania.

 

Cena domu na kľúč zahŕňa:

✅ Projekt pre stavebné povolenie
✅ Základy do výšky 50 cm
✅ Konštrukčný systém
✅ Strešná krytina 
✅ Kvalitné plastové okná s izolačným trojsklom a vchodové dvere
✅ Kompletná elektroinštalácia
✅ Kompletné rozvody vody a kanalizácie
✅ Fasádny zatepľovací systém (15 cm)
✅ Silikónová omietka
✅ Sadrokartónové konštrukcie
✅ Biele maľby
✅ Tepelná izolácia podlahy
✅ Moderné podlahové vykurovanie
✅ Interiérové dvere
✅ Montáž plávajúcej podlahy, keramickej dlažby a obkladov
✅ Montáž zariaďovacích predmetov (WC, umývadlá, sprcha, vaňa...)

NAJNOVŠIE VIDEÁ

✅Videoreferencia Vila Banský Studenec
✅Videoreferencia - Rodinný Dom Pršianska Terasa
✅Montované rodinné domy Zvolen-Sarvaška
✅Pasiv-dom promo video
✅Sarvaška 5 verzia 2
✅Videoreferencia - Rodinný Dom Mošovce

BLOG

Rekuperácia

Rekuperácia

22. June 2020

Zatiaľ čo predtým bola rekuperácia skôr záležitosťou veľkých komerčných stavieb, v poslednom čase rastie dopyt po rekuperácií aj v rodinných domoch. Čo vlastne rekuperácia je?

Čítať viac
Difúzne otvorená či uzavretá konštrukcia?

Difúzne otvorená či uzavretá konštrukcia?

15. June 2020

Chystáte sa stavať dom a neviete aký typ konštrukcie zvoliť? V tomto článku sa dozviete hlavné rozdiely a vlastnosti difúzne otvorenej a uzavretej konštrukcie, ktoré Vám pomôžu pri výbere.

Čítať viac
Nový stavebný zákon

Nový stavebný zákon

08. June 2020

Stavebníkov čaká sprísnenie pravidiel. Od začiatku roka 2021 budú musieť všetky nové stavby splniť parametre budov s takmer nulovou spotrebou energie. Počítať tak treba hlavne s vyššou cenou. Nejde totiž o lacnú záležitosť.

Čítať viac

PROJEKČNÁ KANCELÁRIA

Návrh a projektovanie drevostavieb a murovaných rodinných domov.

www.projektreal.sk

Nízkoenergetické montované domy za cenu bytu dostupné pre všetkých.

www.realdom.sk

Naše recenzie na mape

Špeciálne a doplnkové služby

RECENZIE ZÁKAZNÍKOV

  • Skúsenosti s firmou PASIV-DOM sme mali pozitívne, prípadné problémy boli riešené v krátkom čase. Lenka Uherčíková

  • Pre montovaný rodinný dom sme sa rozhodli kvôli rýchlej výstavbe a tepelnoizolačným vlastnostiam. S prácou firmy PASIV-DOM sme spokojní. Igor Slávik

  • Pre firmu PASIV DOM sme sa rozhodli kvôli rýchlosti výstavby, použitej technológii výroby s porovnaním s konkurenciou. S realizáciou rodinného domu sme spokojní, určite odporučíme ďalej. Jozef Psota

  • Skúsenosti máme vcelku pozitívne, domček nám slúži na rekreáciu. Vladimír Kubovčák

  • S firmou PASIV DOM sme mali počas výstavby väčšinou pozitívne skúsenosti, výber výstavby montovaného domu pred výstavbou klasického murovaného domu sme neoľutovali. Slavomír Kemka

  • V globále spokojná, profesisti veľmi dobrá odbornosť. Janka Pfisterová

  • Boli sme spokojný. Aj s rýchlosťou aj kvalitou aj ochotou. Peter Modrovský

  • Okrem malých prieťahov pri stavbe som bol spokojný. Henrich Galbavý

  • Som spokojný. Rýchlosť, prístup, profesionalita, kvalita, skúsenosti p. Lovás

  • Dobrá spolupráca, dodržané termíny, oceňujem ústretovosť a poradenstvo p. Hazuchu. Ing. Eva Vidová

Naši partneri